一般业主都认为效果图很重要,要看到效果才知道装修的好不好,其实也对,但是过于片面。正规的装修公司一般在装修时都会出一套完整的施工图,包括施工图、水电走向图、立面图等等图纸,这些图纸在装修过程中至关重要,绝不能忽略。具体包括哪些,我们一起来看看......
1、立面图
立面图展示的是从水平的角度看到房间局部的剖面,设计师一般都是画出主要墙面的立面图。业主最好需要要求设计师将其他墙面的立面图,看立面图需要结合平面布置图,这样看起来才能更清楚。
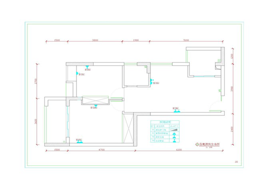
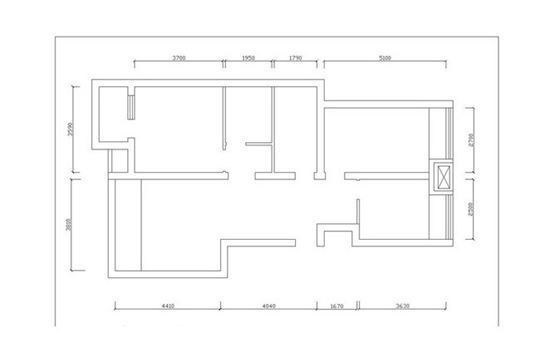
2、原始平面图
原始平面图是量房后画的第一张图纸,是画设计图纸的基础。主要标注出房型的尺寸、层高、原始管路及门洞等。
3、平面布置图
平面布置图合理的规划平面布置图在很多人看来,是最考验设计师的设计水平的。
4、墙体改建图
一般设计师用斜线表现拆除的墙体,实心的粗线条表示新砌的墙体,这样一般人都能看得出来墙体的改动了。
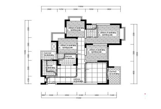
5、地面材质图
一般需要标注地面所用的材质种类,是瓷砖还是地板,拼铺走向、图案及不同材料的分界说明。好的设计师绘制的地面材质图一般都能数出所用地砖的数量,这样就让预算做不了手脚,地板的需要量也可以再图上计算出来。当然,这些都是毛估的,实际的用量还是要把损耗考虑进去的,不过可以作为一个参照物看设计师计算的是否正确。
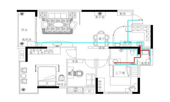
6、插座分布图
很多业主在后期的使用中都会埋怨家里的插座数量太少了,这就是当初插座分布图没有考虑清楚。插座的位置、数量都会在这张图中绘制出来,当然,插座的安排还要避开门窗、家具,不然也是白装。一般来说,插座的安装是在保证够用的前提下,再适当留出一些备用的即可。有的装修公司为了增加预算,会多增加插座,这点也是需要当心的。
7、弱电分布图
音响线、电视线、电话线、网络线都是属于弱电的范围,布置的时候要考虑其相互之间的干扰性。现在很多家庭在装修的时候,都会考虑背景音乐、灯光控制等智能家居系统,最好能让专业的智能家居公司来设计,也会出具相关的布线图。
8、天花吊顶图
这张图能看出天花吊顶的走向和顶部灯具的位置,图中应该详细标出吊顶的平面造型、尺寸以及距离地面的高度。一般来说,吊顶的尺寸标注方式有2中,一种是从地面到顶部的标高,一种是屋顶到吊顶下口的距离。
9、开关布置图
开关布置图要注明房间离所有开关的位置及每个开关锁控制的电器、灯源等,同时要注明开关的种类,一面安装时混淆。有的时候开关布置图会与照明平面图画在一起,常用的灯可以多设置几路控制,能起到节能的作用。
10、给水布置图
给水图上要标明卫生间、厨房等处的给、排水线路的平面布置图,还应该标注出冷热水的具体分布。如果有可能,尽量要装修公司免费提供光盘影响记录,标注准确的施工位置给日后维修也能带来方便。
11、节点详图
施工中有一些关键部分的施工是具有难度的,设计到某些具体施工工艺的就需要绘制这些图纸,在途中标明造型尺寸,表明材料等。
想要了解更多,请给 “装修大事件” 留言
记得持续关注:装修大事件 哦
往期阅读:
我不提倡装修越贵越好,但这些地方你一定不能省!
干货|业主最想知道的:全包多少钱?最低多少钱?
300块一天的活没有人干,看完的人都沉默了...
年前定设计 年后再装修!85%业主都这样做了!
2019装修涨价,已成定局!年前还不装修,家里有矿吗?
冬季装修好处多,年前定比年后定更省钱!
装修工苦,装修工累......
- end -

诺奇衣柜
木之秀衣柜
凡瑞歌德全屋定制
红苹果全屋定制
科洛迪衣柜
百乘衣柜
汉德兄弟衣柜
派瑞诗衣柜
欧曼全屋定制
百特斯全屋定制
Sigmann西克曼全屋定制
普尔玛全屋定制
美雅韵派衣柜
华日芙蓝衣柜
友客衣柜
帝亚衣柜
格莱美衣柜
东家家居
汉宁原木定制
百事隆衣柜
GASTAR星牌厨电科技
迈丹尼全屋实木定制
生能集成灶
TCL电器
雅科波罗全屋定制
德尼尔全屋定制
法贝尼全屋定制
伊思特全屋定制
90°家居
纽莱福全屋定制
凯度
乐宜嘉家居
艾杜维衣柜
爵士盾定制衣柜
依索维尔
名气电器

